Ficha
Piso en Alfonso XII
Madrid (Jeronimos) - REF. 1102

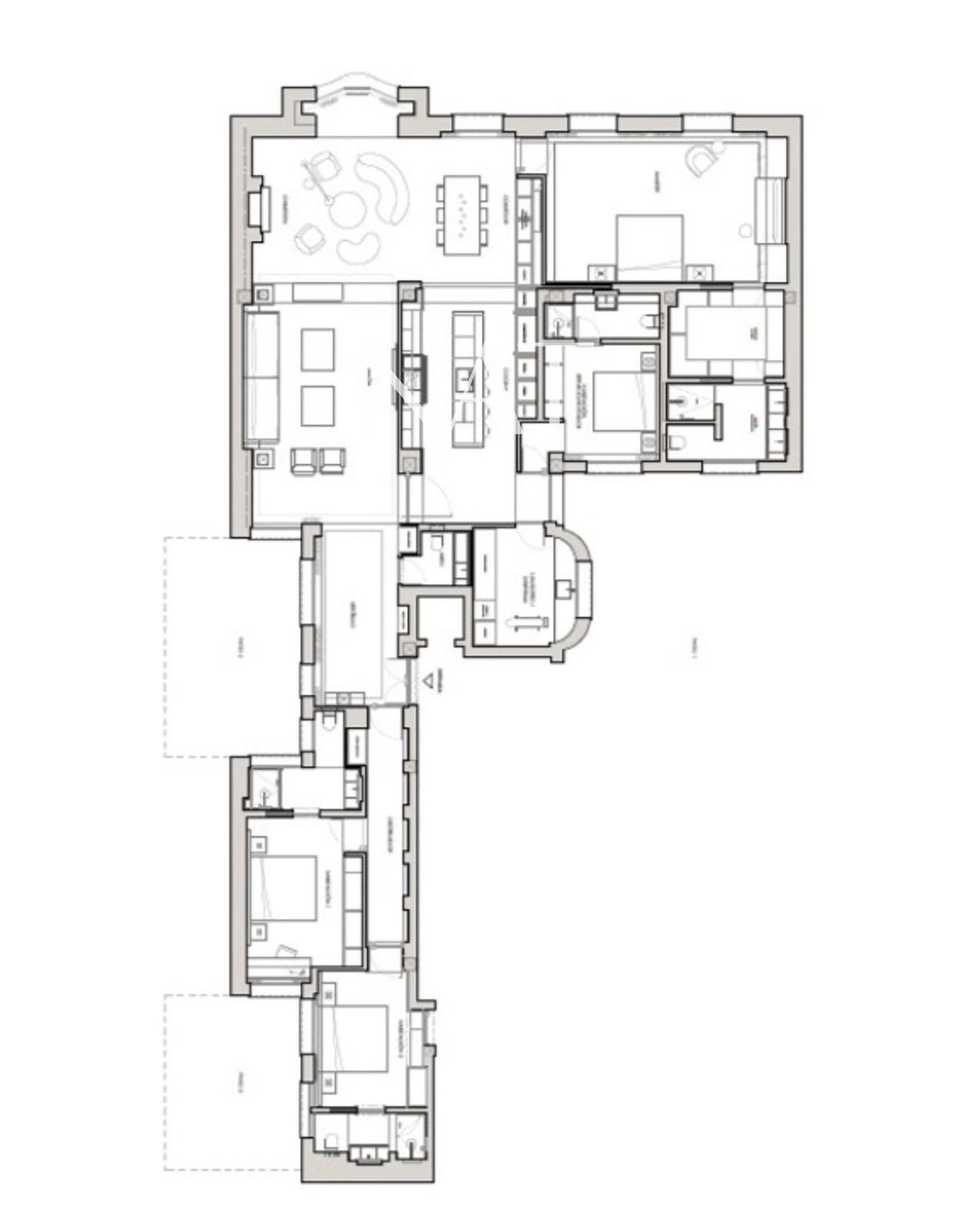
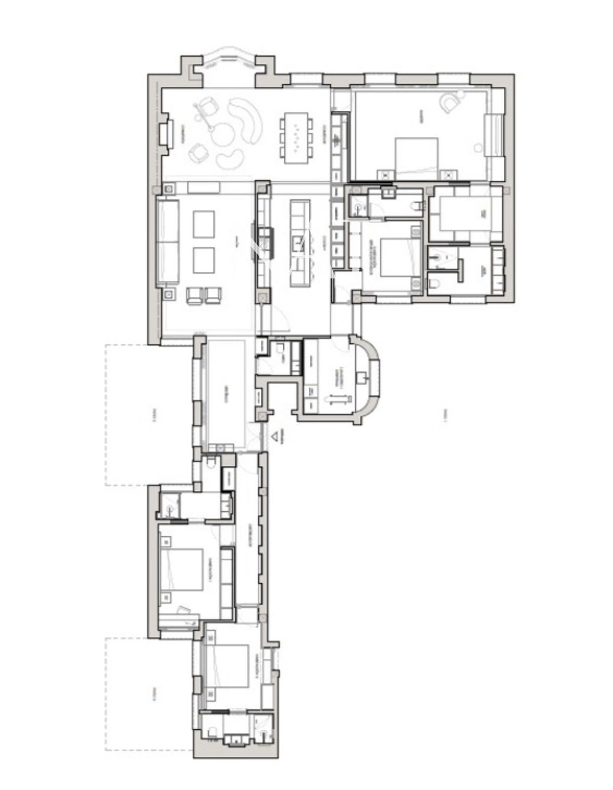
381 m2

4

5

3
venta: 7.510.000 €
Descripción

Descubre este impresionante piso reformado, ubicado en la exclusiva zona de Jerónimos, en el corazón del Barrio del Retiro. Su posición inmejorable te sitúa frente al Parque del Retiro, y a pocos metros del Real Jardín Botánico y del Museo del Prado, combinando cultura y naturaleza en un entorno único.

Situado en la tercera planta de un edificio de impecable conservación, con servicio de portería y zonas comunes en perfecto estado, esta propiedad se extiende sobre 381 m2, con un trastero de 11 m2.

Al ingresar, un amplio hall da la bienvenida y conecta con un salón espacioso y luminoso, integrado con un comedor que potencia la amplitud del ambiente. La cocina americana, diseñada para los paladares más exigentes,destacaporsuislacompletaenmármolylacocinaLacanchepersonalizada,encargada directamente afábricaenFrancia,mientrasquelasvinerashechasamedidaañadenuntoquede sofisticación.

La zona de descanso está compuesta por cuatro dormitorios, cada uno con baño en suite para garantizar el máximo confort La suite principal resalta por su walk-in closet ofreciendo un espacio íntimo y exclusivo. Además, se incluye un aseo de cortesía que completa de forma práctica la distribución de la vivienda.

Entregada totalmente amueblada, esta propiedad conjuga elegancia clásica y detalles contemporáneos, lista para disfrutar de un estilo de vida excepcional en una de las zonas más prestigiosas de Madrid.

Características
Precio Venta 7.510.000 €
Año de construcción 1940
Construidos 381 m2
Precio/m² 19.711
Dormitorios 4
Baños 5
Terraza
Altura/Planta 3
Estado Reformado
Ascensor
Calificación Energética En trámite
Escalas de eficiencia



Tu agente
THE NAT GROUP
Contáctanos

Si deseas más información sobre esta propiedad, por favor, rellena el formulario.

 Sí, he leído y/o acepto las Condiciones de uso y la Política de privacidad
Galería
Inmuebles similares:
 
8.500.000 €
Ref. 1033  394 m2  3  4
Piso en venta en Madrid, con 394 m2, 3 habitaciones y 4 baños, Ascensor y Aire acondicionado.
 
7.990.000 €
Ref. 1001  403 m2  3  4
Piso en venta en Madrid, con 403 m2, 3 habitaciones y 4 baños, Trastero y Ascensor.